ナースコール設備
安心してお過ごしいただく為のナースコールのご案内です。
各居室にはワイヤレスコールボタンを設置し、各居室からの呼出を事務室に設置された
ナースコール親機に表示し、入居者と通話することができる設備です。
ナースコール親機に連動したPHS子機にも呼び出しがかかります。
※トイレ、脱衣・浴室には通話機能はありませんので、呼出のみとなります。

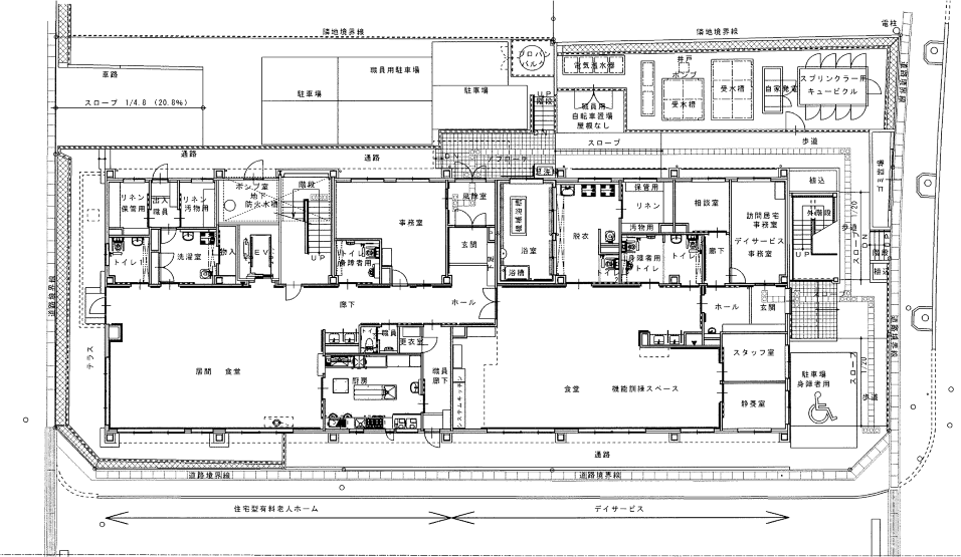
各フロア平面図
各フロアの平面図をご案内いたします。
※クリックで拡大表示されます。
1F 平面図
2F 平面図
3F 平面図

安心してお過ごしいただく為のナースコールのご案内です。
各居室にはワイヤレスコールボタンを設置し、各居室からの呼出を事務室に設置された
ナースコール親機に表示し、入居者と通話することができる設備です。
ナースコール親機に連動したPHS子機にも呼び出しがかかります。
※トイレ、脱衣・浴室には通話機能はありませんので、呼出のみとなります。

各フロアの平面図をご案内いたします。
※クリックで拡大表示されます。